東区南紫竹2丁目 2号棟 新潟県新潟市東区南紫竹2丁目|2,690万円の新築一戸建て|株式会社green
| 価格 | 2,690万円 ![]() |
||||
|---|---|---|---|---|---|
| 所在地 | 新潟県新潟市東区南紫竹2丁目
この地域周辺の物件を見る |
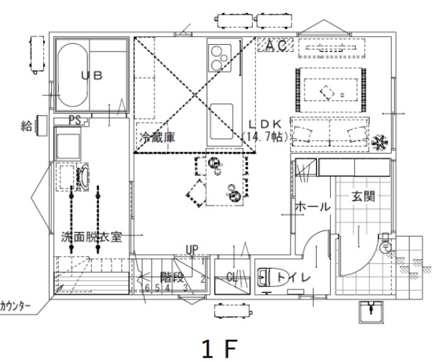
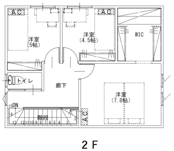
土地面積 | 122.4m² (公簿) (37.02坪) | 建物面積 | 89.64m2 |
| 築年月 | 2023年12月築 | 間取り | 3LDK (-) | ||
| 交通 |
JR信越本線 越後石山駅 徒歩22分
|
||||
| 特徴 |
|
|---|---|
| セールスコメント | ◆◆アクセス◆◆ ○JR越後石山駅まで車で約6分! ○バス停「南紫竹2丁目」まで徒歩約6分! ◆◆周辺環境◆◆ ○江南小学校…約700m ○石山中学校…約900m ○東明こども園…約750m ○キューピット南紫竹店…約300m ○クスリのコダマ南紫竹店…約300m ○セブンイレブン新潟東明1丁目店…約350m ○東新潟病院…約2500m ○新潟姥ケ山郵便局…約1000m ○JR越後石山駅…約2100m ○東山公園…約150m お気軽にお問合せください♪ |
| 採光面 | - | 構造/階数 | -/-階建 |
|---|---|---|---|
| 建ぺい率 | 60(%) | 容積率 | 200(%) |
| 駐車場 | - | 現況/引渡し | 未入居/即時 |
| 土地権利 | - | 私道負担面積 | - |
| 接道状況 | 接道: 北 公道 道路幅: 5m | 用途地域 |
準工業地域
|
| セットバック | - | 法令上の制限 | - |
| 地目 | 宅地 | 地勢 | |
| 建築確認番号 | 都市計画 | 市街化区域 | |
| 取引態様 | 一般媒介 | ||
| 情報更新日 | 2026年05月16日 | 次回更新日 | 2026年05月30日 |
| 小学校区 | 江南小学校 (新潟市東区) 新潟市東区立江南小学校学区の他の物件を見る |
中学校区 | 石山中学校 (新潟市東区) 新潟市東区立石山中学校学区の他の物件を見る |
|---|
| 価格 | 万円 | ||
|---|---|---|---|
| 年利率 | % |
||
| ボーナス払い | 返済年数 | ||
| 頭金 | 直接入力する | 万円 | |

毎月のご返済額 |
ボーナス(×年2回) |
物件価格2,690万円 |
![]() |
![]() |
新潟市東区南紫竹2丁目
2690万円〜2710万円 |
※「ホームページを見た」と
お伝え下さい。
【物件番号:RHS-ko20250926-2】
お知らせ-TOPICS-
【令和5年12月完成】南紫竹分譲住宅 2号棟
スーパー等の商業施設近く、毎日のお買い物に便利!!
教育施設近く、お子様の通学も安心!!
未入居物件です!!